2 Bedrooms House / Villa in Agios Tychonas, Limassol

Description

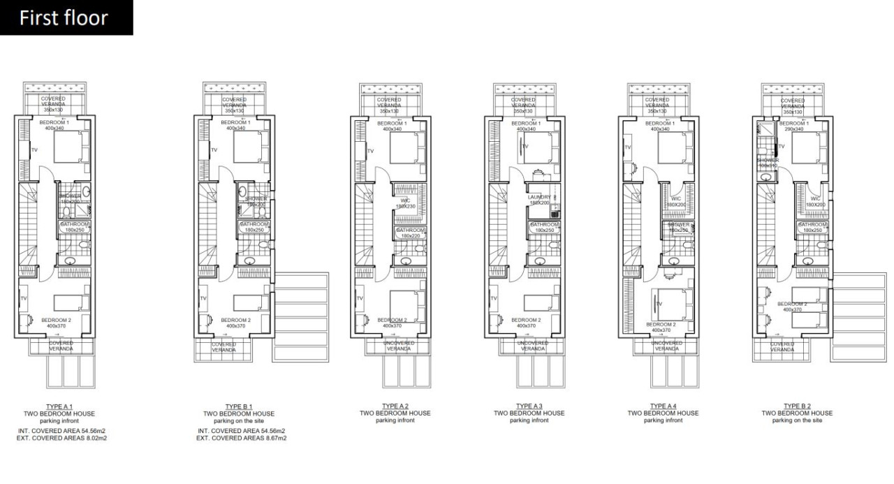
Modern complex of nine maisonettes in the peaceful area of Agios Tychonas, Limassol. Just a short drive away from Limassol, this development provides a serene living environment with easy access to the city's amenities. Each unit features an additional above-ground space on the lower level, which can be converted into living quarters if desired. Plumbing installations are already in place here, although this option is not included in the standard design. Additionally, there is a separate laundry area on the roof, which can also be transformed into extra living space, such as an additional bedroom. AVAILABILITY Maisonettes Internal area 114 sq.m. Covered veranda 25 sq.m. Uncovered verandas 42 sq.m. Parking area 8 sq.m. Basement 53 sq.m. There are more maisonettes available in this project. Status: Under construction Completion date: End of 2025
460 000 €
Property ID 105562
New home
Conditiondition Condition New
Year of build Year of build 2025
Covered area square Covered area 192 m2
Uncovered Area Uncovered Area 42 m2
Bedroom Bedroom 2
Bathroom Bathroom 2
Toilets Toilets 3
Private Garden
Storage Room
En suite
Covered parking
1