3 Bedrooms House / Villa in Chlorakas, Paphos

Description

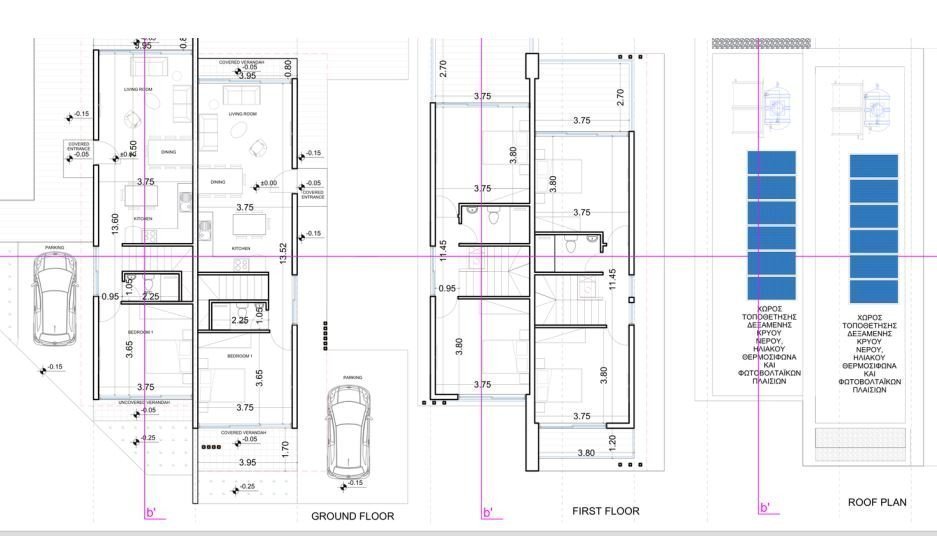
An extraordinary development situated in Chloraka Village, west of the Paphos district three kilometres from the town. It is built at an average altitude of about 70metres from the sea. This exclusive project encompasses eleven  2- storey houses, a range of 2 and 3-bedroom residences,each boasting 2-3 bathrooms. The properties feature optional swimming pools, adding a touch of luxury to the serene landscape. Embrace a modern lifestyle that harmoniously integrates with the natural beauty of Cyprus, promising not just a home but an exclusive retreat with breathtaking views and easy access to village amenities. Key Features Energy efficiency category A Upgraded thermal aluminium series Tailor made kitchen design  Wide range of imported ceramic tiles and marbles Branded sanitary ware Provisions for central heating and Air conditioning  Detached properties  Unobstructed sea views Optional swimming pool Optional roof garden  AVAILABILITY Villa Covered area 135 sq.m. Uncovered veranda 15 sq.m. Status: Off plan
440 000 €
Property ID 109038
New home
Conditiondition Condition New
Year of build Year of build 2026
Plot area Plot area 240 m2
Covered area square Covered area 150 m2
Uncovered Area Uncovered Area 15 m2
Bedroom Bedroom 3
Bathroom Bathroom 3
Toilets Toilets 3
Communal Pool
Private Garden
Communal Garden
En suite
Air conditioning
Covered parking
1