3 Bedrooms Penthouse in Germasogeia, Limassol

Description

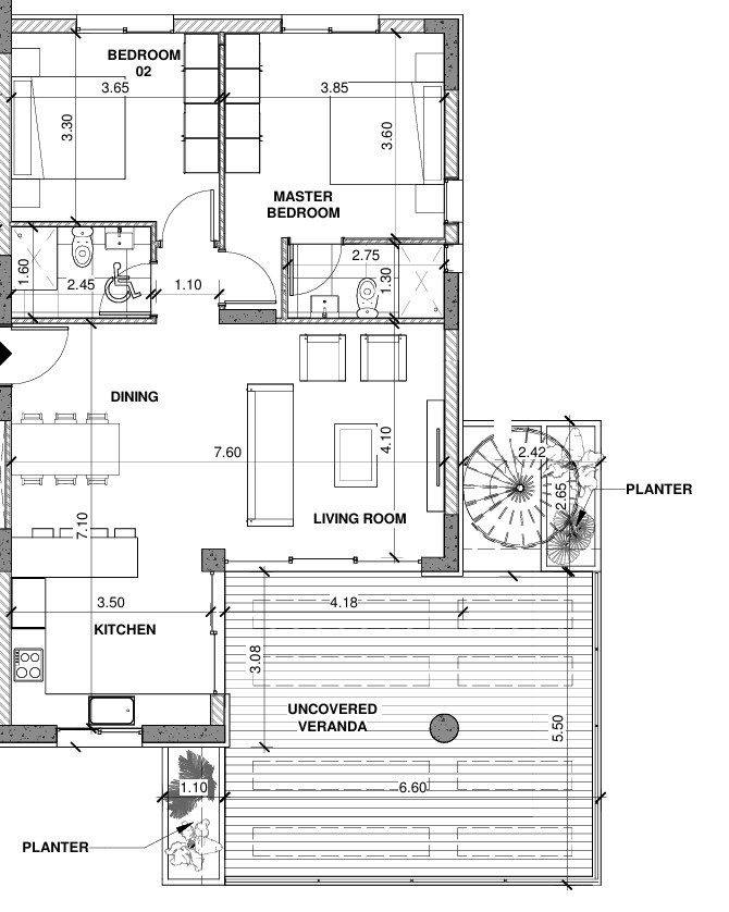
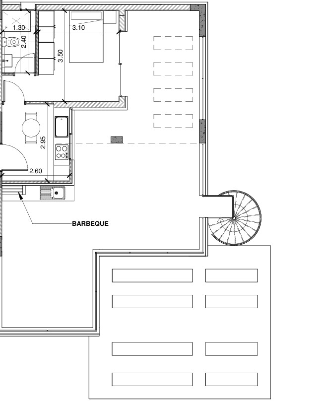
Luxurious apartments located in the bustling area of Germasogeia, only 4 minutes from the roundabout. The apartments are in a quiet residential area, on a small hill, enjoying unobstructed mountain and sea views. The beach and city center are only 8 minutes away and a variety of shops, supermarkets, banks, restaurants, coffee shops and bakeries are within proximity (in the municipality of Germasogeia and also across the roundabout). The modern design building includes two 2-bedroom apartments on each of the first two floors and two 3- bedroom, split-level apartments on the 3rd and 4th floors with private roof gardens. Note that the 3rd bedroom is on the same level as a roof garden. 

Completion - June 2025

520 000 € +vat
Property ID 101986
Year of build Year of build 2024
Covered area square Covered area 185 m2
Bedroom Bedroom 3
Bathroom Bathroom 3
Sea View
Mountain View
Communal Pool
Roof Garden
Storage Room
En suite
1