Investment in Pano Polemidia, Limassol

Description

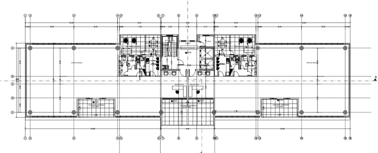
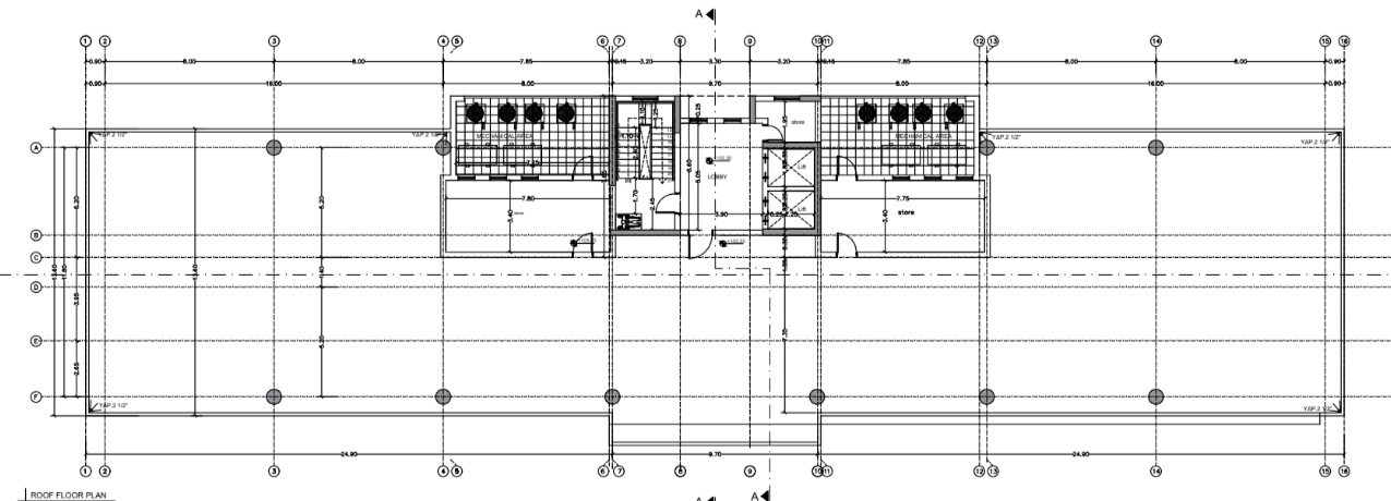
New business center in Limassol. Great location. 107 parking spaces. 4 floors with a roof terrace with mountain views. This large scale mixed use masterplan, situated on anoverall site area of 231,393 m2. The irregular shaped project site sits on complexterrain that varies by up to 100m in elevation. Themasterplanning exercise and design of the individualbuildings shall therefore require careful considerationwhen locating buildings and roads in order tomaximise the potential of the site, integrating thebuildings within the landscape and taking advantageof the wide panoramic views whilst minimisingexcavation as far as possible. Status: Off plan Completion: 24 months
13 000 000 €
Property ID 108593
New home
Conditiondition Condition New
Year of build Year of build 2028
Plot area Plot area 3327 m2
Covered area square Covered area 4901 m2
Uncovered Area Uncovered Area 652 m2
Title Deeds
Air conditioning
Central Heating
Covered parking
1