Land in Agios Ioannis, Limassol

Description

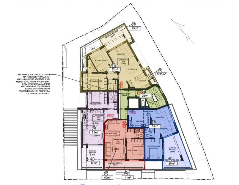
An excellent investment opportunity in one of Limassol’s most strategic commercial locations. This commercial plot includes an existing building and offers strong redevelopment potential, making it ideal for investors or developers seeking mixed-use possibilities. A town planning permit is expected shortly for a new development comprising shops, offices, and residential units. Architectural plans and 3D visualizations for the proposed project are already available. Property Details Plot Area : 592 m² Type: Commercial plot with existing building Existing Structure: Commercial building Year of Construction: 1980 Planning Zone: Εβ4 (Commercial) Density: 140% Coverage: 50% Maximum height: 4 floors Total covered area 1,962 sq.m. Building Layout Basement: 455 m² Ground Floor – Shops: Shop 01: 75 m² + 37 m² mezzanine Shop 02: 84 m² + 42 m² mezzanine First Floor – Offices: Office 101: 101 m² Office 102: 119 m² Second Floor – Apartments: Three 1-bedroom apartments: 51 m², 50 m², 53 m² One 2-bedroom apartment: 82 m² Third Floor – Apartments: Two 2-bedroom apartments: 86 m² & 89 m² Roof storage / laundry areas: 32 m² + 32 m² Key Highlights Prime central Limassol location Excellent access to main roads Strong investment and redevelopment potential Suitable for retail, office, and residential use Architectural plans and 3D visuals available
1 150 000 €
Property ID 110720
Plot area Plot area 592 m2
Title Deeds
1