Land in Columbia, Limassol

Description

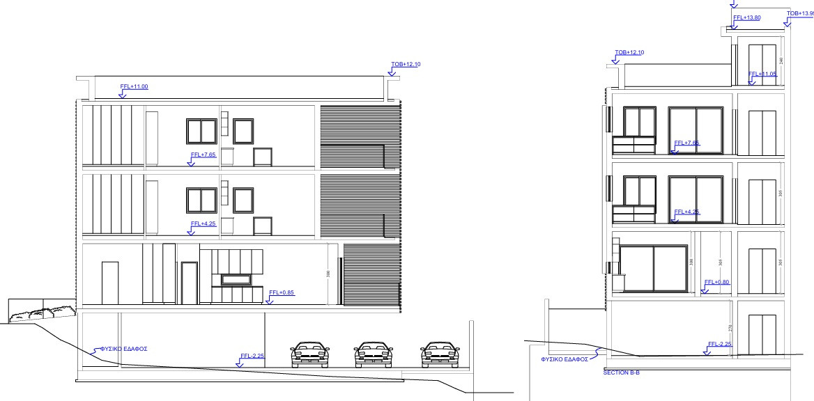
Residential land for sale in Columbia area, including approved architectural plans for three 2-bedroom apartments. Distribution agreement is in the final stages, making this plot ready for development in one of Limassol’s prime areas. Ideal for residential investment.
300 000 €
Property ID 106515
Plot area Plot area 275 m2
Title Deeds
1